| Name: | PD 2548 (DA 1235) | |
| PD: | PD 2548 | |
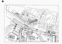
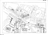
| Title: | Plan of the north part of the Agora and environs, showing proposed excavations to the north. | |
| Artist: | W.B. Dinsmoor, Jr. | |
| Notes: | Scanned. DB: 11 (05/03/2001). Replaces (supplements) north part of PD 1239. | |
| Storage: | 42 | |
| Negative: | 88-348 | |
| Bibliography: | Camp (1986), p. 216. | |
| Date: | 1983 | |
| References: | Images (4) |