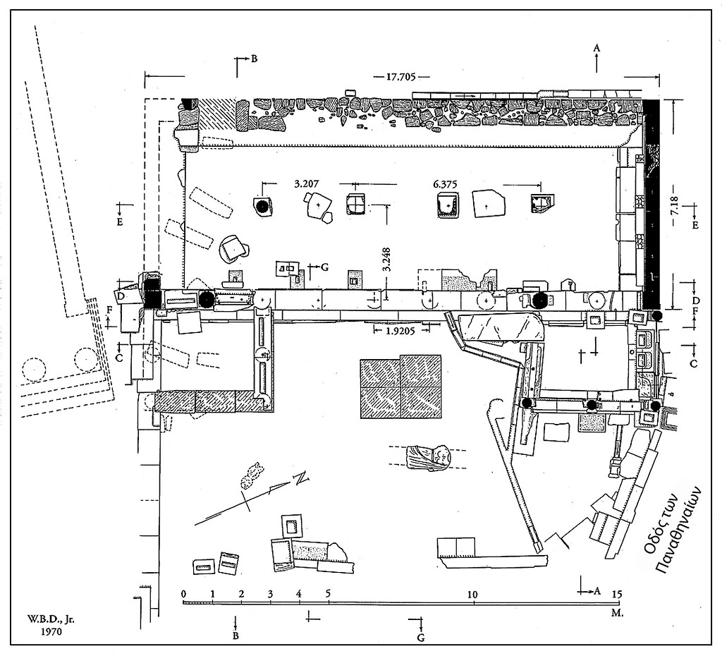
Drawing: PD 1983-2003 (DA 13291)State plan of the Royal Stoa (greek).
image
Name:   PD 1983-2003 (DA 13291)
PD:   PD 1983-2003
Title:   State plan of the Royal Stoa (greek).
Artist:   W.B. Dinsmoor, Jr.
Notes:   Greek version of PD 1983.
Linked image is 2008.20.0080.
Bibliography:   AgoraPicBk 16 (2003), p. 40, fig. 61.
Date:   2003
1970
References:   Publication: AgoraPicBk 16 (1976)
Monument: Royal Stoa
Image: 2008.20.0079
Image: 2008.20.0080