| Name: | PD 1637 (DA 13312) | |
| PD: | PD 1637 | |
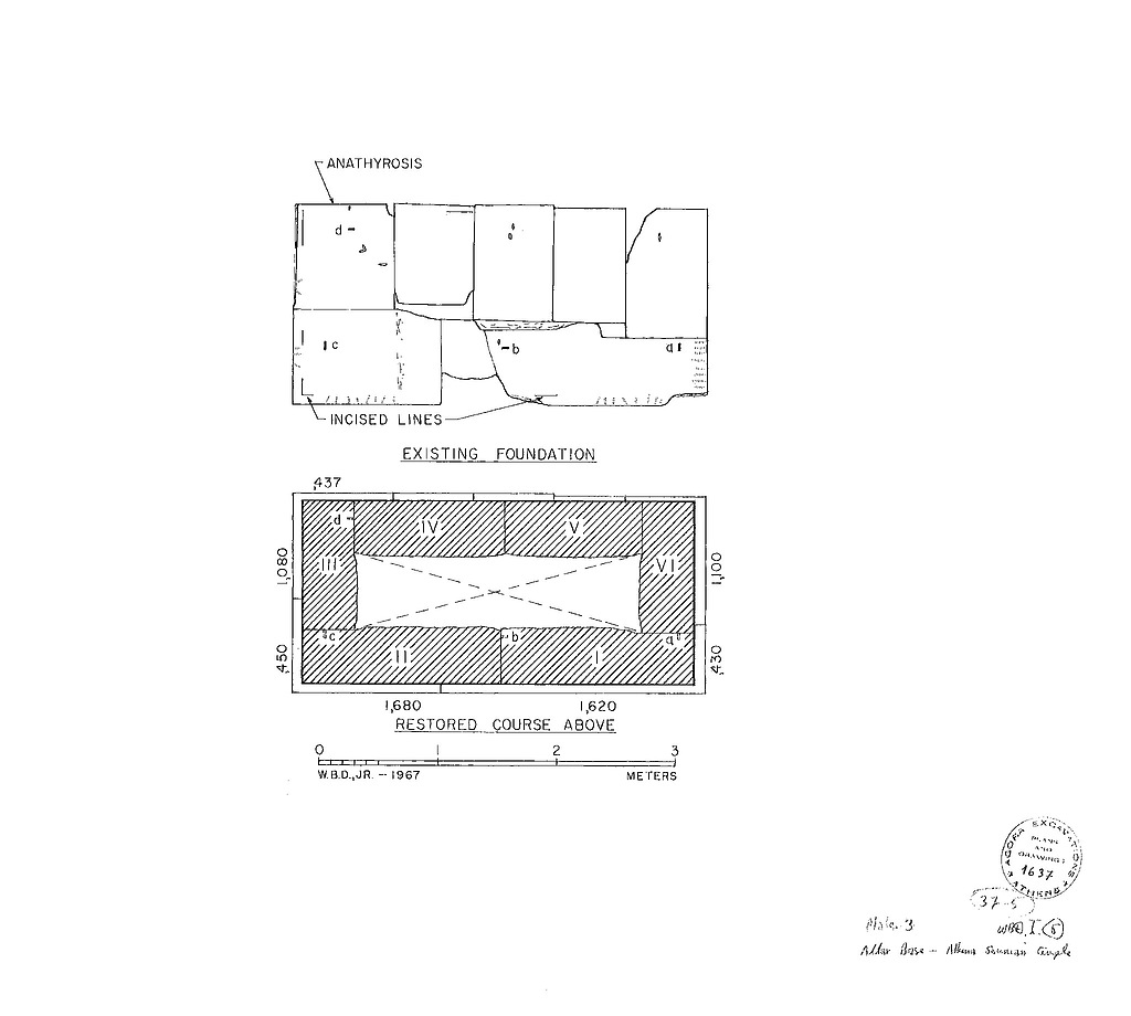
| Title: | Temple of Athena at Sounion: altar base. | |
| Artist: | William B. Dinsmoor, Jr. | |
| Notes: | Original. Scanned at Princeton. | |
| Storage: | 29-2 | |
| Bibliography: | Barletta (2017), p. 103, fig. 107. | |
| Date: | 1967 | |
| References: | Publication: Barletta (2017) Image: 2014.01.0099 |