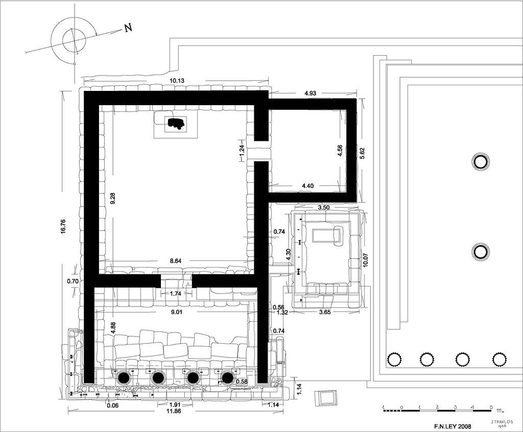
Drawing: PD 5 (DA 13722)Restored plan of the Temples of Apollo Patroos, Zeus and Athena, 2nd half of the 4th century B.C.
image
Name:   PD 5 (DA 13722)
PD:   PD 5
Title:   Restored plan of the Temples of Apollo Patroos, Zeus and Athena, 2nd half of the 4th century B.C.
Artist:   J. Travlos
    Fred N. Ley
Notes:   Digital file.
Date:   2008
1936
References:   Monument: Temple of Apollo Patroos
Monument: Temple of Zeus Phratrios and Athena Phratria
Image: 1997.03.0054 (7-20)
Image: 2012.25.0154 (7-20)