| Name: | PD 2644 (DA 2416) | |
| PD: | PD 2644 | |
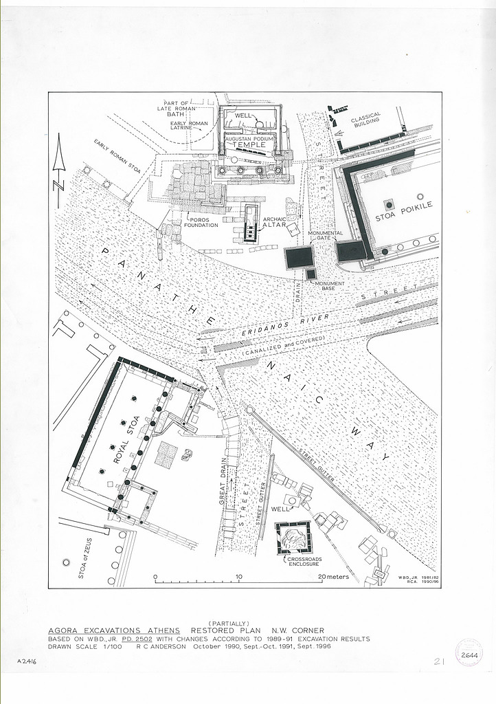
| Title: | Partial restored plan of the northwest corner of the Agora (according to the 1989 and 1990 excavation results). | |
| Artist: | Richard C. Anderson | |
| Notes: | Scanned. DB: 12 (05/03/2001). | |
| Storage: | 21-1 | |
| Condition Base: | Dirty | |
| Material: | Drafting Film | |
| Medium: | Drafting Ink | |
| Size Sheet: | A1 | |
| Scale: | 1:100 | |
| Bibliography: | Hesperia 66 (1997), p. 496, fig. 1. | |
| Hesperia 65 (1996), p. 232, fig. 1. | ||
| Agora XXXVI, p. 483, fig. 2.369. | ||
| Date: | 1990 | |
| References: | Publication: Agora XXXVI Publication: Hesperia 65 (1996) Publication: Hesperia 66 (1997) Image: 2015.21.0019 Image: 2002.01.2644 |