| Name: | PD 1709 (DA 2752) | |
| PD: | PD 1709 | |
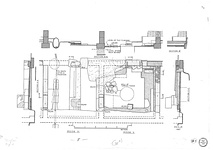
| Title: | State plan and sections of Rooms V and VI of South Stoa I. | |
| Artist: | William B. Dinsmoor, Jr. | |
| Storage: | 23 | |
| Bibliography: | Hesperia 37 (1968), p. 50, fig. 4. | |
| Date: | 1967 | |
| References: | Publication: Hesperia 37 (1968) Monument: South Stoa I Image: 2002.01.1709 |