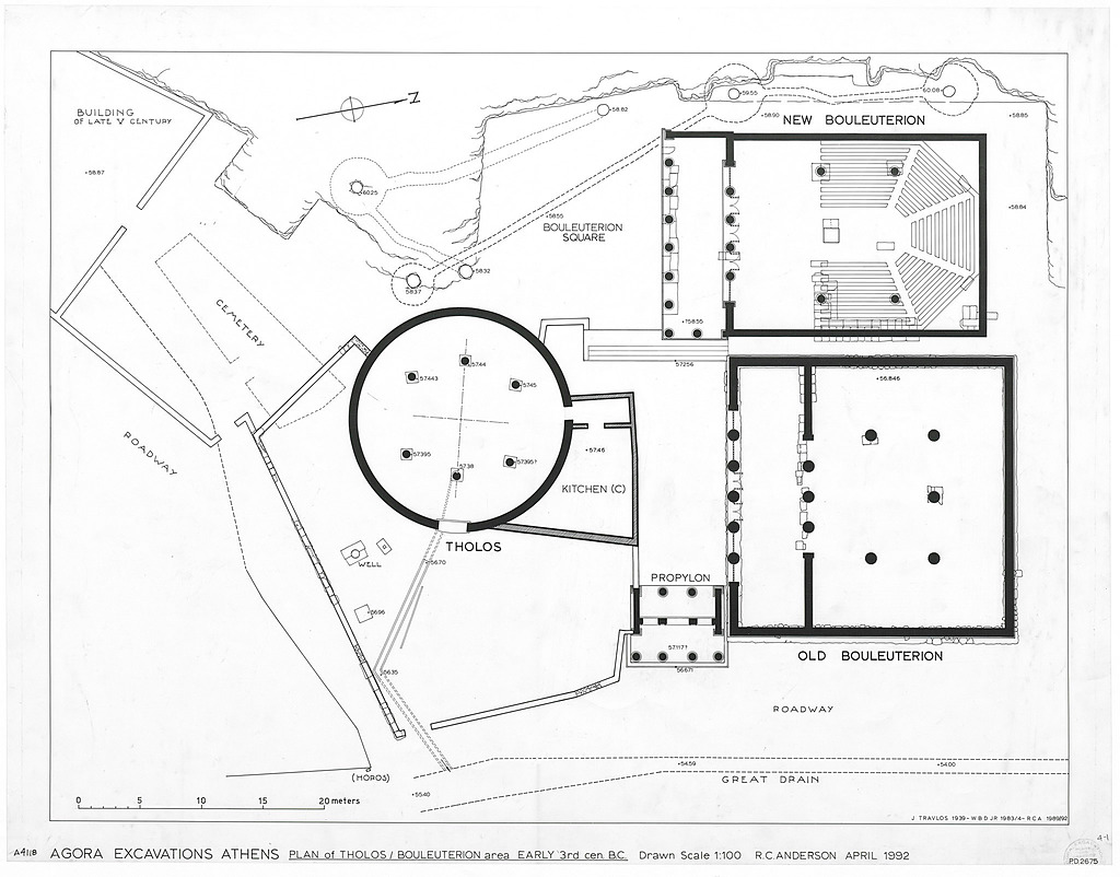
Drawing: PD 2675 (DA 4118)Restored plan of the Tholos/Bouleuterion area in the early 3rd century B.C.
image
Name:   PD 2675 (DA 4118)
PD:   PD 2675
Title:   Restored plan of the Tholos/Bouleuterion area in the early 3rd century B.C.
Artist:   Richard C. Anderson
Notes:   Scanned. DB: 45 (05/03/2001).
Storage:   4-1
Material:   Drafting Film
Medium:   Drafting Ink
Size Sheet:   0.900 x 0.697
Scale:   1:100
Chronology:   Early 3rd century B.C.
Date:   1992
Elevation:   57.38
57.395
57.44
57.45
References:   Monument: Metroon
Monument: Tholos
Image: 2002.01.2675