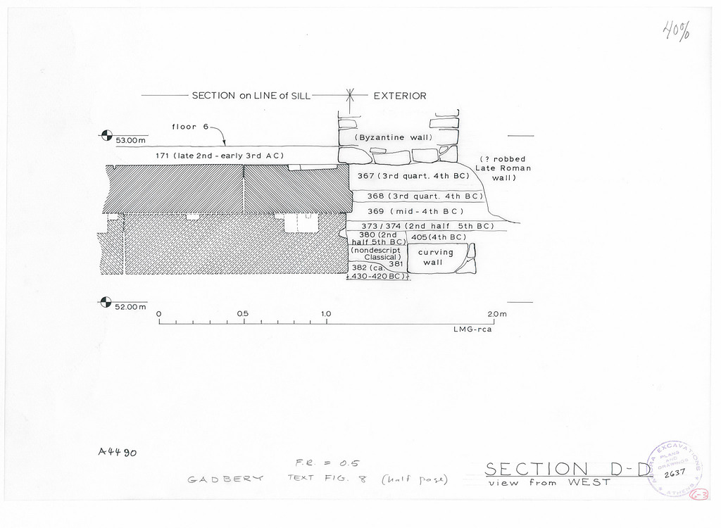
Drawing: PD 2637 (DA 4490)Altar of the Twelve Gods peribolos wall for Laura M. Gadbery. Cross-section D-D.
image
Name:   PD 2637 (DA 4490)
PD:   PD 2637
Title:   Altar of the Twelve Gods peribolos wall for Laura M. Gadbery. Cross-section D-D.
Artist:   Richard C. Anderson
Notes:   Sent to Princeton 4/22/1991.
Storage:   6-3
Material:   Drafting Film
Medium:   Drafting Ink
Size Sheet:   A3
Scale:   1:10
Bibliography:   Agora 61 (1992), p. 456, fig. 8.
Date:   1989
Elevation:   52.00
53.00
References:   Monument: Altar of the Twelve Gods