| Archive Number: | 1997.10.0386 | |
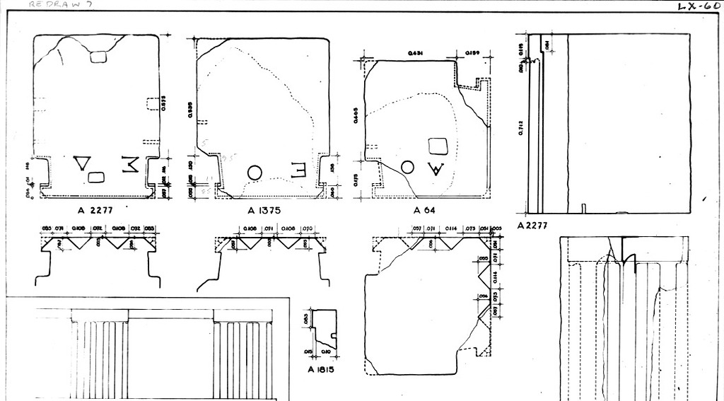
| Title: | Plans, sections, and elevations of triglyphs and a reconstruction of the frieze. Cf. Hesperia 28 (1959), pp. 18-19, figs. 9 and 10 for a revised version made in 1958 by Ms. Holland. | |
| Negative: | LX-60 | |
| PD Number: | PD 776-1953 | |
| Photographer: | M.R. Holland | |
| Date: | 1953 | |
| Rating: | 1 | |
| Section: | Ε | |
| ΚΤΛ | ||
| Storage: | Drawer 10 | |
| References: | Monument: Altar of Ares Monument: Statues of Harmodios and Aristogeiton and the Orchestra Monument: Temple of Ares Drawing: PD 776-1953 (DA 4509) Image: 2012.53.1155 (LX-60) Object: A 64 Object: A 1375 Object: A 2277 |