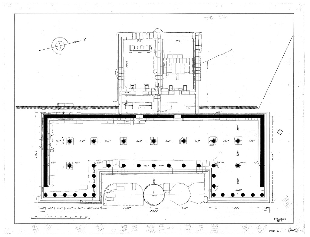
Image: 2002.01.0002Restored plan of the Stoa of Zeus Eleftherios.
image
Archive Number:   2002.01.0002
Title:   Restored plan of the Stoa of Zeus Eleftherios.
PD Number:   PD 2
Date:   1936
Bibliography:   Hesperia 6 (1937), pl. II.
Rating:   1
Section:   Α
References:   Publication: Hesperia 6 (1937)
Monument: Stoa of Zeus
Drawing: PD 2 (DA 4152)