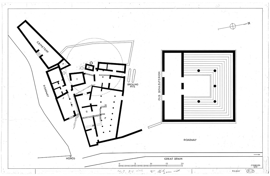
Image: 2002.01.0064Restored plan of the area of the Tholos at the end of the 6th century B.C.
image
Archive Number:   2002.01.0064
Title:   Restored plan of the area of the Tholos at the end of the 6th century B.C.
PD Number:   PD 64
Photographer:   J. Travlos
Date:   1939
Bibliography:   Hesperia Suppl. 4 (1940), p. 41, fig. 32.
Rating:   1
References:   Publication: Hesperia Suppl. 4 (1940)
Monument: Metroon
Drawing: PD 64 (DA 4124)
Drawing: PD 64 (DA 4096)