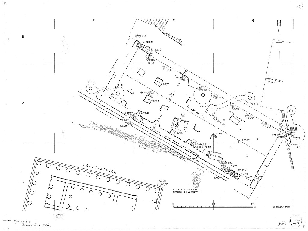
Image: 2002.01.2437State plan of the Arsenal.
image
Archive Number:   2002.01.2437
Title:   State plan of the Arsenal.
PD Number:   PD 2437
Photographer:   W.B. Dinsmoor, Jr.
Date:   1978
Bibliography:   Hesperia 53 (1984), p. 235, fig. 1.
Rating:   1
References:   Publication: Hesperia 53 (1984)
Monument: Arsenal
Monument: Sanctuary of the People and Graces
Drawing: PD 2437 (DA 4344)
Drawing: PD 2437 (DA 4223)
Drawing: PD 2437 (DA 4237)