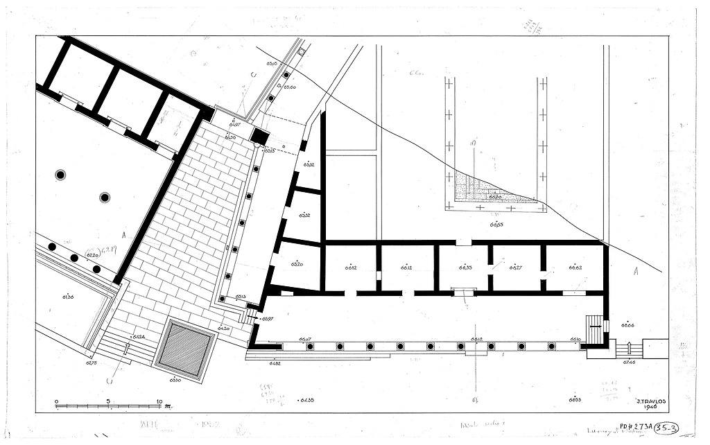
Image: 2002.02.0005Restored plan, showing the Library of Pantainos (right), Street leading to Roman Agora (center) and the south end of the Stoa of Attalos (left).
image
Archive Number:   2002.02.0005
Title:   Restored plan, showing the Library of Pantainos (right), Street leading to Roman Agora (center) and the south end of the Stoa of Attalos (left).
PD Number:   PD 273-a
Photographer:   J. Travlos
Date:   1946
Bibliography:   Hesperia 16 (1947), pl. XLIV.
Rating:   1
Storage:   35-3
References:   Publication: Hesperia 16 (1947)
Report Page: 2005 Excavations, s. 8
Monument: Library of Pantainos
Drawing: PD 273-a (DA 283)