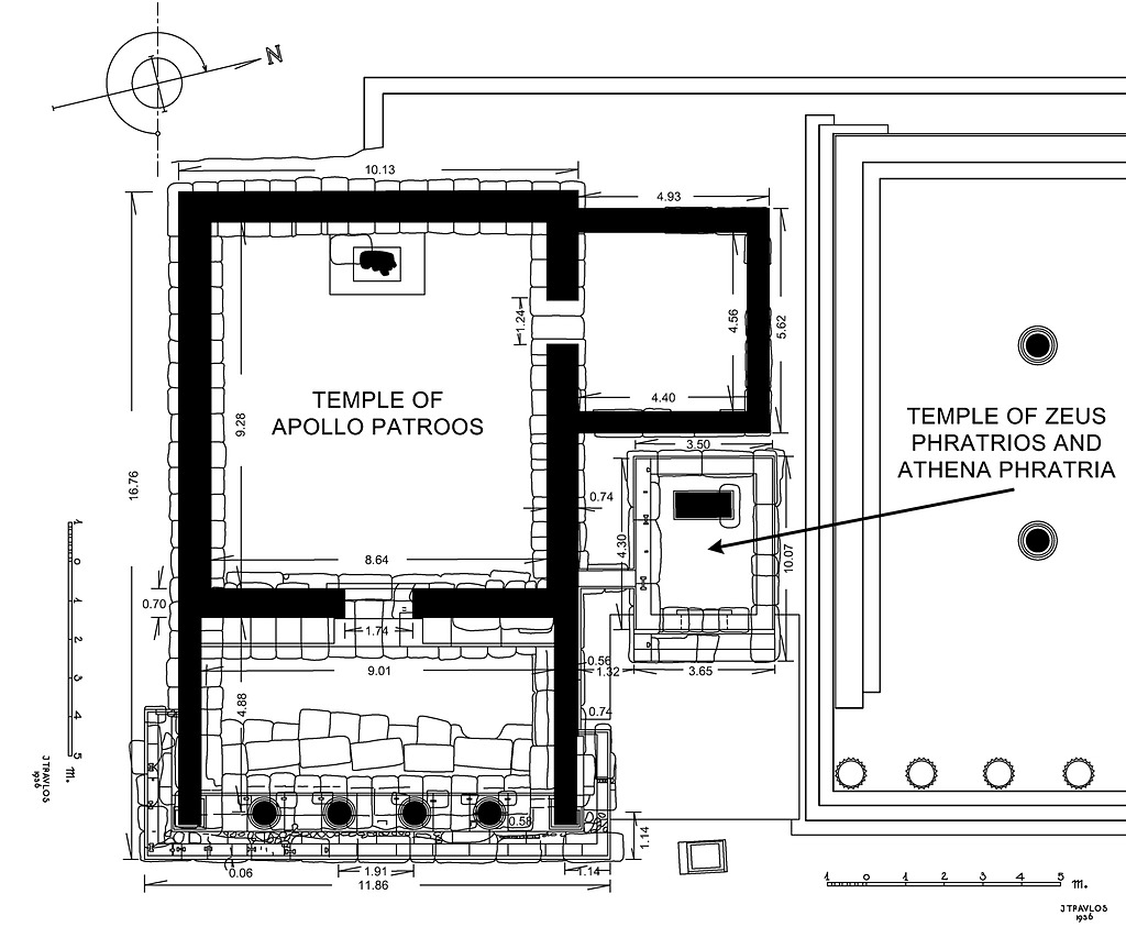
Image: 2011.04.0053Plan of the Temple of Apollo Patroos, last quarter of the 4th century B.C., with the tiny Temple of Zeus Phratrios and Athena Phratria (?) to the north.
image
Archive Number:   2011.04.0053
Title:   Plan of the Temple of Apollo Patroos, last quarter of the 4th century B.C., with the tiny Temple of Zeus Phratrios and Athena Phratria (?) to the north.
PD Number:   PD 5-2010
Date:   7 Jul 2009
Bibliography:   Guide (2010), p. 71, fig. 40.
Rating:   3
References:   Monument: Temple of Apollo Patroos
Monument: Temple of Zeus Phratrios and Athena Phratria
Drawing: PD 5-2010 (DA 12871)