Agathe
|
Help
Filters & Options
Show
All Results
(83)
Publications
(7)
Plans and Drawings
(5)
Images
(57)
View as
List
Icons
Table
Map
Sign in
Provide feedback
Anything not working? Typos? Let us know.
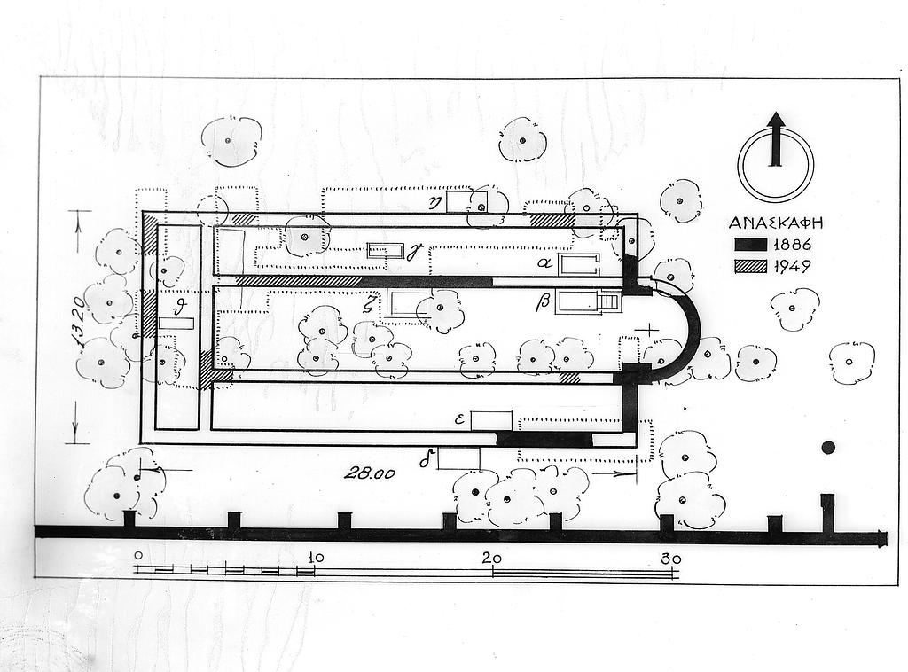
Image: 2012.52.1106 (XLII-13)
:
Athens. Excavations north of the Olympieion: Basilica (by J. Travlos, 1949).
Archive Number:
2012.52.1106
Title:
Athens. Excavations north of the Olympieion: Basilica (by J. Travlos, 1949).
Negative:
XLII-13
Date:
1949
Rating:
2