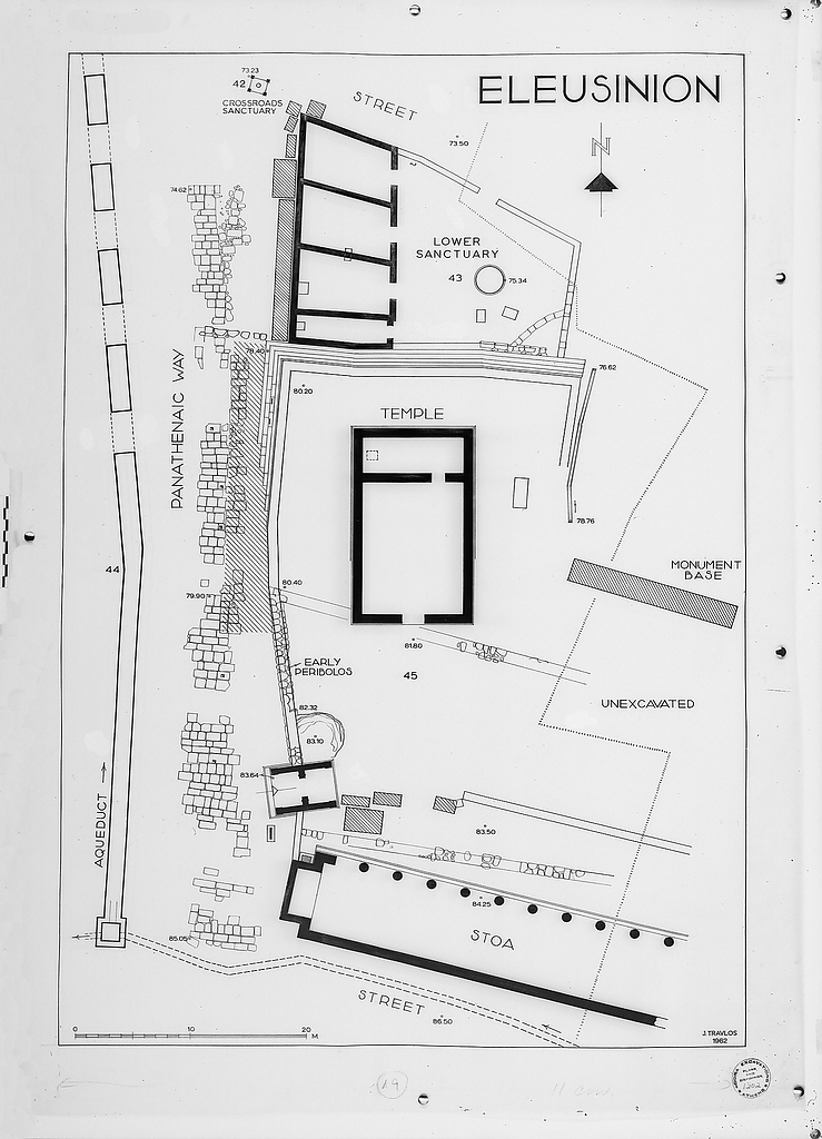
Image: 2012.56.0926 (83-209)Restored plan of the Eleusinion. Scale 1:100.
image
Archive Number:   2012.56.0926
Title:   Restored plan of the Eleusinion. Scale 1:100.
Negative:   83-209
PD Number:   PD 1202
Photographer:   John Travlos
Date:   1962
Bibliography:   Guide (1990), p. 153, fig. 98.
    Guide (1976), p. 142, fig. 72.
    Guide (1962), p. 89, fig. 19.
    Agora XIV, p. 151, fig. 37.
Rating:   2
Section:   ΕΛ
Storage:   Drawer 15
References:   Publication: Agora XIV
Drawing: PD 1202 (DA 429)
Drawing: PD 1202 (DA 430)
Image: 1997.15.0134 (83-209)