| Archive Number: | 2012.59.0449 | |
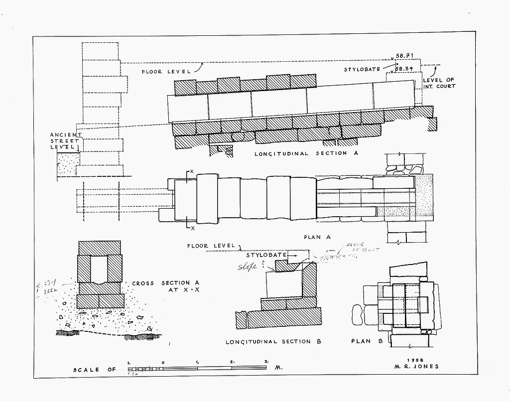
| Title: | Plan and sections of drains. 1:15. | |
| Negative: | 88-468 | |
| PD Number: | PD 971 | |
| Photographer: | M.R. Jones | |
| Date: | 1958 | |
| Bibliography: | Agora XXVII, p. 64, ill. 6. | |
| Rating: | 2 | |
| Section: | ΣΑ | |
| Storage: | Drawer 12 | |
| References: | Publication: Agora XXVII Drawing: PD 971 (DA 239) Image: 1997.12.0264 (88-468) |