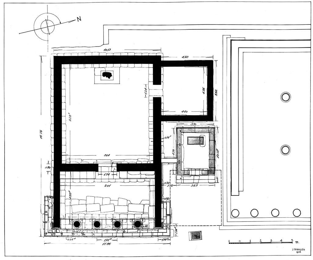
Image: 1997.03.0054 (7-20)Restored plan of the Temple of Apollo Patroos. 2nd half of the 4th c. B.C.
image
Archive Number:   1997.03.0054
Title:   Restored plan of the Temple of Apollo Patroos. 2nd half of the 4th c. B.C.
Negative:   7-20
PD Number:   PD 5
Date:   1936
Bibliography:   Guide (1990), p. 76, fig. 38.
    Camp (1986), p. 159, fig. 132.
    AgoraPicBk 19 (1980), p. 8, fig. 12.
    Hesperia 6 (1937), pl. V.
Rating:   1
Section:   ΟΕ
Storage:   Drawer 3
References:   Publication: AgoraPicBk 19 (1980)
Publication: Hesperia 6 (1937)
Monument: Temple of Apollo Patroos
Drawing: PD 5 (DA 4087)
Drawing: PD 5 (DA 13722)
Image: 2012.25.0154 (7-20)